ONLOOK
“ A space to pause, express and reconstruct identity ”
A space for users who feel pressured by expectations and the fast pace-life in singapore. inspired by hip hop culture and its roots in self-expression, the space allows users to pause, observe and express freely. Angular forms represent structure and societal pressure, while fluid curves symbolise freedom and creativity. together, they create a journey from restraint to expression, offering a space for release, community and rediscovery.

RENDERS
Intuitive. Elegant. Immersive.
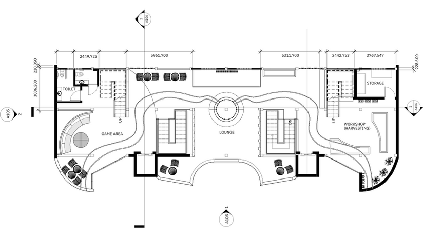
SOULSPROUT
A modular, curved area that combines modern facades that represents the past, present and future. This design reminds seniors that their past is valued while anchoring them in the present. Use of lush foliage, the space fosters tranquillity. It will also promote the rejuvenation of purpose through various activities. Creating a community of renewal and connection to the future.

























